Detalle alojamiento
Tipo de Alquiler
Villa Capacidad
New construction, Vendido Localidad
Murcia
Sub Location
San Pedro del Pinatar
Situación
€349,000.00
Habitaciones
3
Baños
2
Reference
0014
Terrace
18m2
Descripción del Alojamiento
OPORTUNIDAD! VENTA PILOTO TOTALMENTE AMUEBLADO!
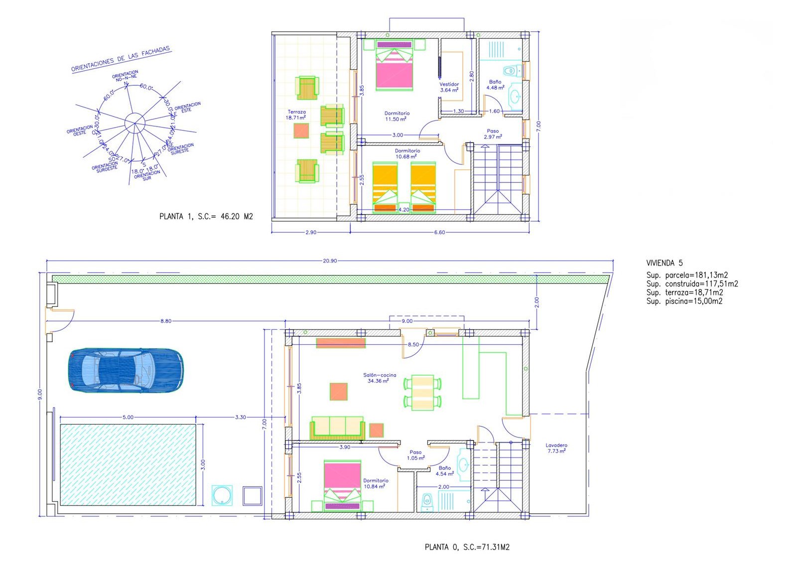
Aire Acondicionado, Banco en el jardín, toldo automatizado, preinstalación de bomba de calor, kit limpieza piscina, cerramiento lavadero y jardinería. Esto es lo que incluye esta vivienda adosada de nueva construcción, en una urbanización tranquila y a solo 5 minutos de las playas de La Llana en el Mar Mediterráneo y de las playas del Mar Menor en Lo Pagán, Costa Cálida.
La villa se divide en 2 plantas, en primera planta encontrará un amplio salón-comedor, cocina abierta, baño y una habitación. En la segunda planta encontrará 2 habitaciones, 1 baño completo y una terraza de 18 m2. La villa también cuenta con piscina privada de 3×5 mts y entrada privada para vehículo.
Precio: 349.000€
Características y Servicios Adicionales
Piscina
Solárium
Jardín
Parking
Terraza
A/C
Amueblado






































