Detalle alojamiento
Descripción del Alojamiento
Promoción de nueva construcción se encuentra en La Rambla en Pilar de la Horadada, uno de los lugares más atractivos de la Costa Blanca. Con sus playas de arena Blanca y con todos los servicios a tan solo 5 minutos a pie. Una de las mejores playas de la zona se encuentra a 3 Kilómetros del Residencial, los cuales puede recorrer en un agradable paseo por la rambla, que le llevará directamente a la playa de las Higuericas.
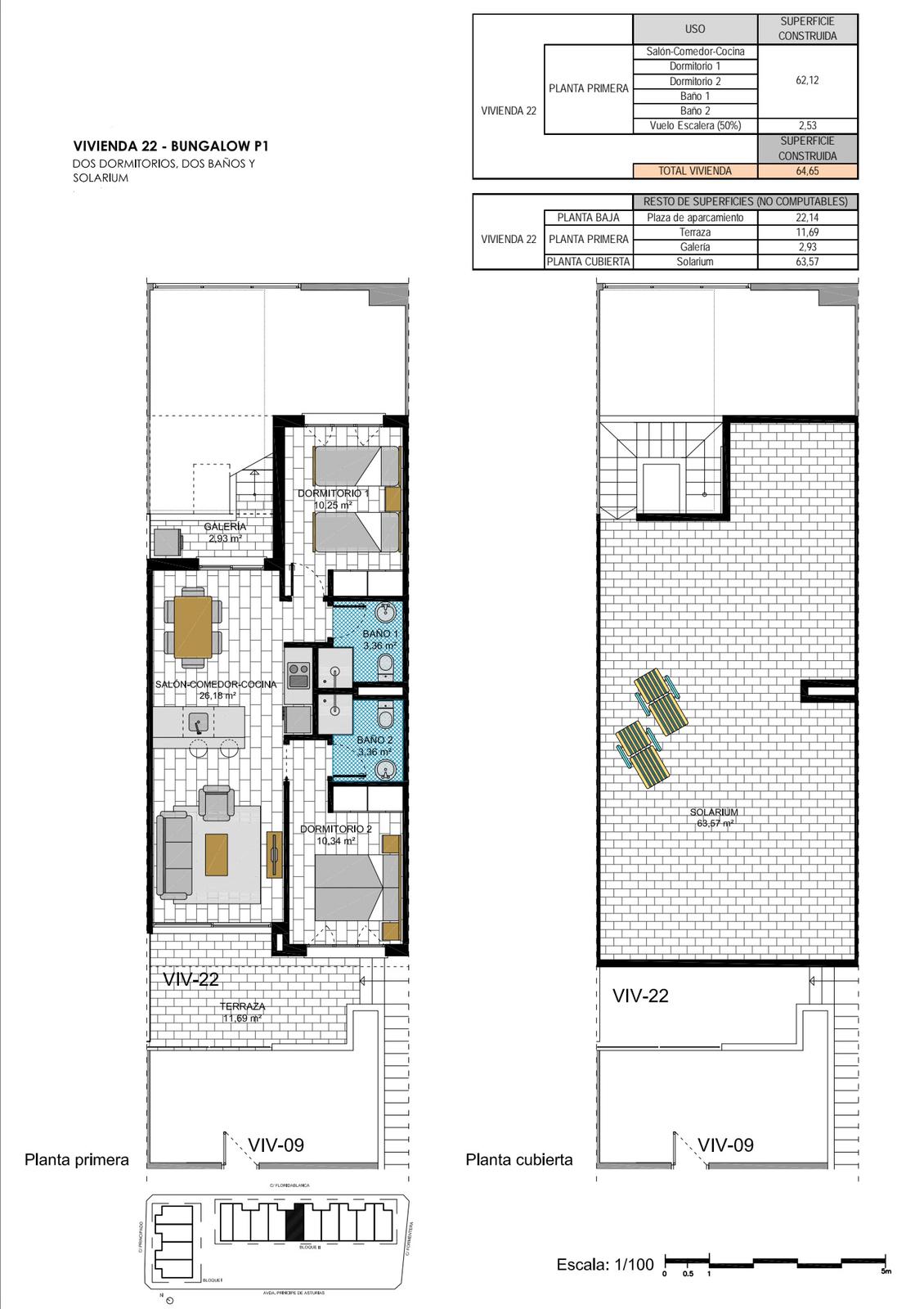
Este residencial consta de 27 viviendas, concretamente 26 bungalows de 2 dormitorios y 2 baños y 1 dúplex de 3 dormitorios y 2 baños, con orientación Sur- Oeste, con vistas a la zona comunitaria de piscina y a la Rambla, lo que hace de este residencial un extraordinario lugar para deleitarse con su ubicación.
Precio: desde 160.000€




















































